Лекція 1
Водостоки будинків
Сміттєвидалення
1. Водостоки будинків
Відвід дощових і талих вод з даху будинку може бути неорганізованим з вільним скиданням води по звісах карнизу та організованим під час скидання води через зовнішні та внутрішні водостоки (рис.1).
Зовнішні водостоки складаються з жолобів і водостічних труб. Труби і деталі до них виготовляють з оцинкованої сталі або пластмаси. Випуск зовнішніх водостічних труб повинен бути вище тротуару або вимощення на 0,2 м. Під час влаштування відкритих випусків слід передбачати заходи щодо запобігання розмиву поверхні ґрунту біля будинку.
У зимові періоди зовнішні водостоки обмерзають і талі води відводяться з даху не повністю, що призводить до замокання та руйнування будівельних конструкцій. Зовнішні водостоки недовговічні й трудомісткі в ремонті.

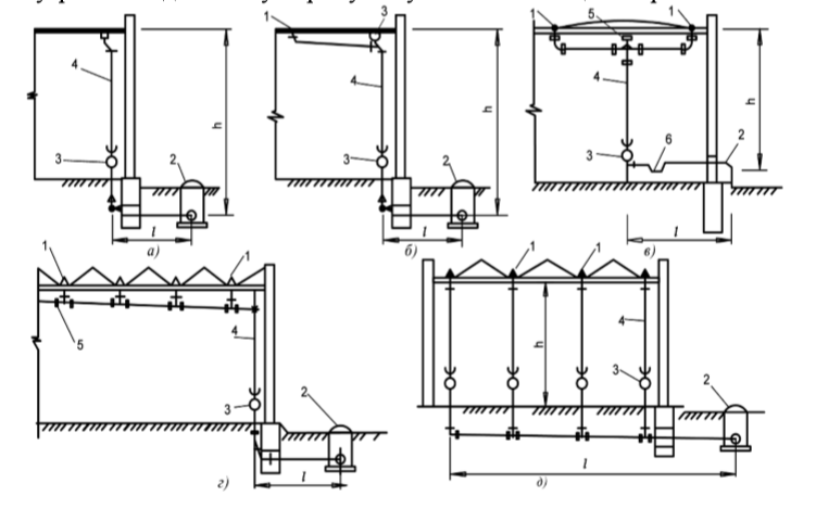
Рисунок 1 - Водостоки будинків: а, б – внутрішні; в – зовнішні:
1 – ревізії; 2 – стояк; 3 – відвідні труби; 4 – воронка; 5 – гідрозатвір; 6 – відкритий випуск; 7 – водостічна труба; 8 – жолоб; 9 – дощоприймач; 10 – оглядові колодязі
Надійніші в роботі внутрішні водостоки (рис. 1, 2), які складаються з таких основних елементів: водостічних воронок, відвідних трубопроводів (стояків, підвісних або підпільних колекторів, випусків) і пристроїв для огляду та прочищення (ревізій, прочисток, оглядових колодязів).

Рисунок 2 - Основні схеми внутрішніх водостоків:
а – система з однією воронкою на стояку; б – система з однією воронкою на стояку та підвісним трубопроводом; в – система з двома воронками, які розташовані симетрично відносно стояка; г – система з декількома воронками і самопливним підвісним трубопроводом; д – система з декількома воронками і самопливним підпільним трубопроводом. 1 – водостічна воронка; 2 – колодязь на випуску; 3 – ревізія; 4–водостічний стояк; 5 – прочистка; 6 – гідрозатвір; 7 – відкритий випуск

Рисунок 3 - Об’ємні схеми розташування внутрішніх водостоків:
а – з підпільним трубопроводом: б – з підвісним трубопроводом
На відкритих випусках водостоків для запобігання надходженню в зимовий період охолодженого повітря і промерзанню водостоків встановлюють гідрозатвори, які під час експлуатації вимагають значно більшої уваги, ніж решта елементів системи. Гідрозатвори висотою 100 мм встановлюють у приміщеннях з температурою не нижче 5°С. Відкритий випуск у місці перетину із зовнішньою стіною повинен мати ізоляцію, отвір з внутрішнього та зовнішнього боків необхідно заштукатурити цементним розчином.

Рисунок 4 - Влаштування відкритого випуску:
а – загальний вигляд гідрозатвору; б – гідрозатвір на сталевому трубопроводі; в – гідрозатвір із фасонних частин (трійник, відступ): 1 – отвір із заглушкою; 2 – упор; 3 – ревізія; 4 – стояк: 5 – прочистка; 6 – гідрозатвір
Водостічні воронки (рис. 6) розташовують на даху з врахуванням рельєфу даху та водозбірної площі, що припадає на одну воронку. Ця площа визначається за розрахунком залежно від пропускної здатності воронки та розрахункових витрат дощових вод, які визначаються, л/с:
для плоского даху

для похилого даху

де F – водозбірна площа, м2;
q20 – інтенсивність дощу, л/с з 1 га, (для даної місцевості), тривалістю 20 хв. при періоді однократного перевищення розрахункової інтенсивності Р рівному одному року;
q5 – теж саме, тривалістю 5 хв
q5 = 4nq20, тут n – кліматичний коефіцієнт (q20, n визначаються за ДБН В.2.5-75:2013).
Значення параметру q20 в межах України можливо визначити за рис. 5; значення кліматичного коефіцієнту n при Р=1 рік: для рівнинних областей України n=0,71, для східних – n=0,67, для Чорноморського узбережжя – n=0,62.

Рисунок 5 - Значення параметру q20 у межах України

Рисунок 6 - Воронки: а – плоска; б – ковпакового типу:
1 – решітка; 2 – рама; 3 – гідроізоляція; 4 – корпус; 5 – перекриття; 6 – переливний патрубок; 7 – ковпак
Розрахункові витрати дощу з водозбірної площі, що припадають на одну водостічну воронку, не повинні перевищувати допустимих величин, які визначаються за паспортними даними прийнятого типу воронки або за відсутності цих даних можливо прийняти: для воронок діаметром 85; 100; 150 та 200 мм, відповідно 4,0; 9,6; 19,5 та 35 л/с. Розрахункові витрати дощових вод, які припадають на один водостічний стояк діаметром 85; 100; 150 та 200 мм, не повинні перевищувати відповідно 10; 20; 50 та 80 л/с.
Діаметр стояка, до якого під’єднані один чи декілька підвісних трубопроводів, приймають не меншим за найбільший діаметр підвісного трубопроводу.
Систему відвідних трубопроводів розраховують, як правило, у самопливному режимі; пропускну здатність трубопроводів визначають з умови їх наповнення h/d – 0,8. Мінімальні уклони відвідних трубопроводів слід приймати рівними: для підвісних трубопроводів – 0,005; для підпільних – за розрахунком.
Водостічні воронки встановлюють з таким розрахунком, щоб максимальна віддаль між ними не перевищувала 48 м, їх слід встановлювати в конструкцію даху з влаштуванням герметичного з’єднання. Гідроізоляційний шар покрівлі випускають на фланець зливного патрубка, затискують зверху фланцем приймальної решітки і заливають бітумною мастикою.
У будинках відвідні трубопроводи від воронок рекомендується прокладати на горищах, технічних поверхах, підвалах. Не дозволено прокладати їх над обладнанням, що боїться потрапляння вологи. Стояки розташовують біля стін відкрито або в нішах. Замонолічування їх у блоки або панелі не дозволяється. У житлових будинках стояки внутрішніх водостоків рекомендується розташовувати на сходових клітинах біля стін нежилих кімнат.
Для прочищення мережі внутрішніх водостоків так само, як і на мережі побутової каналізації, встановлюють ревізії та прочистки.
Мережі внутрішніх водостоків монтують з чавунних, бетонних, сталевих, азбестоцементних і пластмасових труб залежно від схеми розташування внутрішніх водостоків, висоти та призначення будинку. Для водостічних стояків і відвідних трубопроводів слід приймати труби, що витримують гідростатичний тиск під час засмічувань і переповнень. Сталеві труби з ізоляцією від корозії приймають у виробничих приміщеннях, де можлива вібрація, яка буде передаватись на водостоки. Для стояків використовують чавунні, азбестоцементні та пластмасові труби.